Helaas, dit pand is verhuurd

8650 Klerken

Omschrijving

Nieuwbouwwoning met 3 slaapkamers en tuin

Deze recente en rustig gelegen woning heeft volgende indeling:

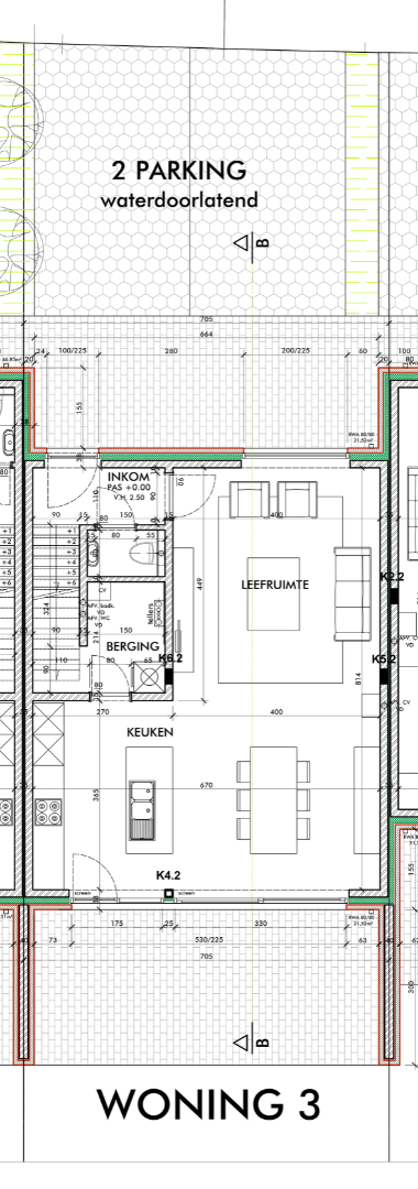
GELIJKVLOERS:
Inkom - apart toilet - lichtrijke leefruimte - ingerichte keuken - berging - tuin met terras en dubbele oprit.

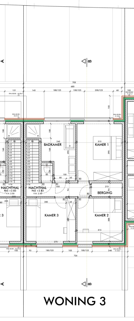
VERDIEP 1:
Nachthal - toilet - 3 volwaardige slaapkamers - ingerichte badkamer met ligbad, inloopdouche en dubbele wastafel berging.

ALGEMEEN:
- CV op aardgas;
- Schrijnwerk: PVC met hoogrendementsbeglazing.
- Regenwaterput: 10.000l
- Onmiddellijk vrij!
- Laag energieverbruik, energiezuinige woning!
- Zonnepanlen aanwezig!
- EPB van toepassing.


Niet gevonden wat je zocht? Schrijf u dan vrijblijvend in op onze nieuwsbrief en blijf op de hoogte van ons recentste aanbod.
Schrijf u in
U gebruikt een verouderde browser. Upgrade nu naar een moderne browser om ten volle gebruik te kunnen maken van alle functies van onze site:
Chrome |  FireFox |  Opera |  Safari |  Microsoft Edge
Terug naar boven
Sluit menu Vastgoed Vanoverschelde