Jos Janssenstraat 22 / A, 8650 Houthulst
Huurprijs: € 975

Omschrijving

Nieuwbouwwoning met 3 ruime slaapkamers en tuin.

Deze nieuwbouwwoning is rustig gelegen in het centrum van Klerken, deelgemeente van Houthulst.
Deze woonst heeft volgende indeling.

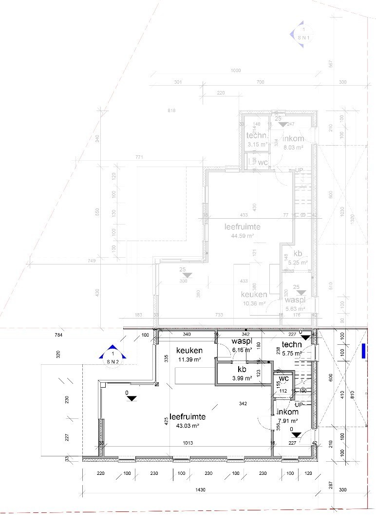
GELIJKVLOERS:
Inkom - apart toilet - leefruimte met open ingerichte keuken – ruime berging en wasplaats.

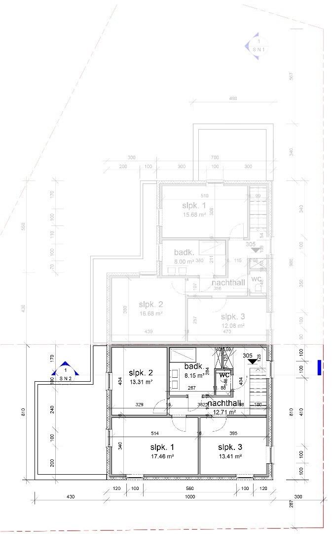
VERDIEP 1:
Nachthal - apart toilet – ingerichte badkamer – 3 ruime slaapkamers.

TUIN:
Oprit - aangelegde en omheinde tuin.

ALGEMEEN:
- CV op aardgas, vloerverwarming.
- Schrijnwerk: PVC - hoogrendementsbeglazing.
- Zonnepanelen aanwezig.
- EPB van toepassing.
- Alle comfort aanwezig!
- Vrij vanaf 01/06/2026.


Kenmerken

Algemeen

Adres:Jos Janssenstraat 22-A
Houthulst
Referentie:VV2026-012H
Huurprijs:€ 975
Type:Woning
Beschikbaar vanaf:1/06/2026
Ligging:In centrum, Aan rustige weg, Residentieel, Gemeente
Perceeloppervlakte:279 m²
Type constructie:Traditioneel
Bouwjaar:2024
Algemene staat:Instapklaar

Indeling

Slaapkamers:3 (17.46 m², 13.41 m², 13.31 m²)
Badkamers:1
WC:2
Woonkamer:43 m², L-kamer
Keuken:11 m², Open keuken, Ingericht met toestellen
Tuin:Ja
Tuin oriëntatie:Zuid
Parking:1
Parking Types:Privé

Comfort

Bushalte:Ja - op minder dan 500 m
Winkel:Ja - op minder dan 500 m
School:Ja - op minder dan 500 m
Kinderopvang:Ja - op minder dan 500 m
Bank:Ja - op minder dan 500 m
Ontspanning:Ja - op minder dan 500 m
Restaurant:Ja - op minder dan 500 m
Raamwerk:PVC
Dak:Plat dak
Gevel:Baksteen
Fundering:In volle grond
Beglazing:Hoogrendementsglas
Verwarming:CV-ketel, Vloerverw. geheel, Condensatieketel
Verwarmd water:Combiketel
Isolatie:Volledig geïsoleerd
Internet:Ja
Mech. ventilatie :Ja
Kabel:Ja
Rookdetector:Ja
Zonnepanelen:Ja

Kadastrale gegevens

Kadastrale Oppervlakte:279 m²

Informatieplicht

Energielabel:A
Overstromingsgevoelig:Niet meegedeeld
Overstromingsgebied:Niet meegedeeld
Erfgoed:Niet meegedeeld

Ligging

Neem vrijblijvend contact op

Wenst u meer informatie of het pand te bezoeken? Contacteer ons vrijblijvend voor meer informatie. 
Wanneer wij uw aanvraag hebben ontvangen zullen wij verder contact met u opnemen. 


U moet akkoord gaan met het privacybeleid van deze website
* Verplicht in te vullen
Niet gevonden wat je zocht? Schrijf u dan vrijblijvend in op onze nieuwsbrief en blijf op de hoogte van ons recentste aanbod.
Schrijf u in
U gebruikt een verouderde browser. Upgrade nu naar een moderne browser om ten volle gebruik te kunnen maken van alle functies van onze site:
Chrome |  FireFox |  Opera |  Safari |  Microsoft Edge
Terug naar boven
Sluit menu Vastgoed Vanoverschelde