Helaas, dit pand is verhuurd

8650 Houthulst

Omschrijving

Recente woning met 3 slaapkamers, carport en tuin

Deze recente en rustig gelegen woning heeft volgende indeling:

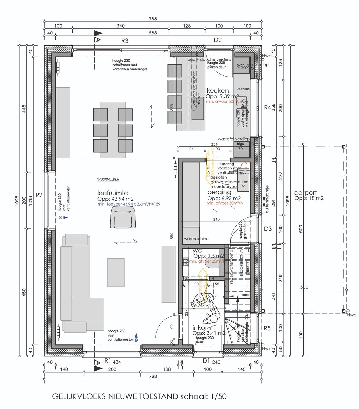
GELIJKVLOERS:
inkom - apart toilet - lichtrijke leefruimte - ingerichte keuken - berging - tuin met terras in gepolierde beton, oprit en carport.

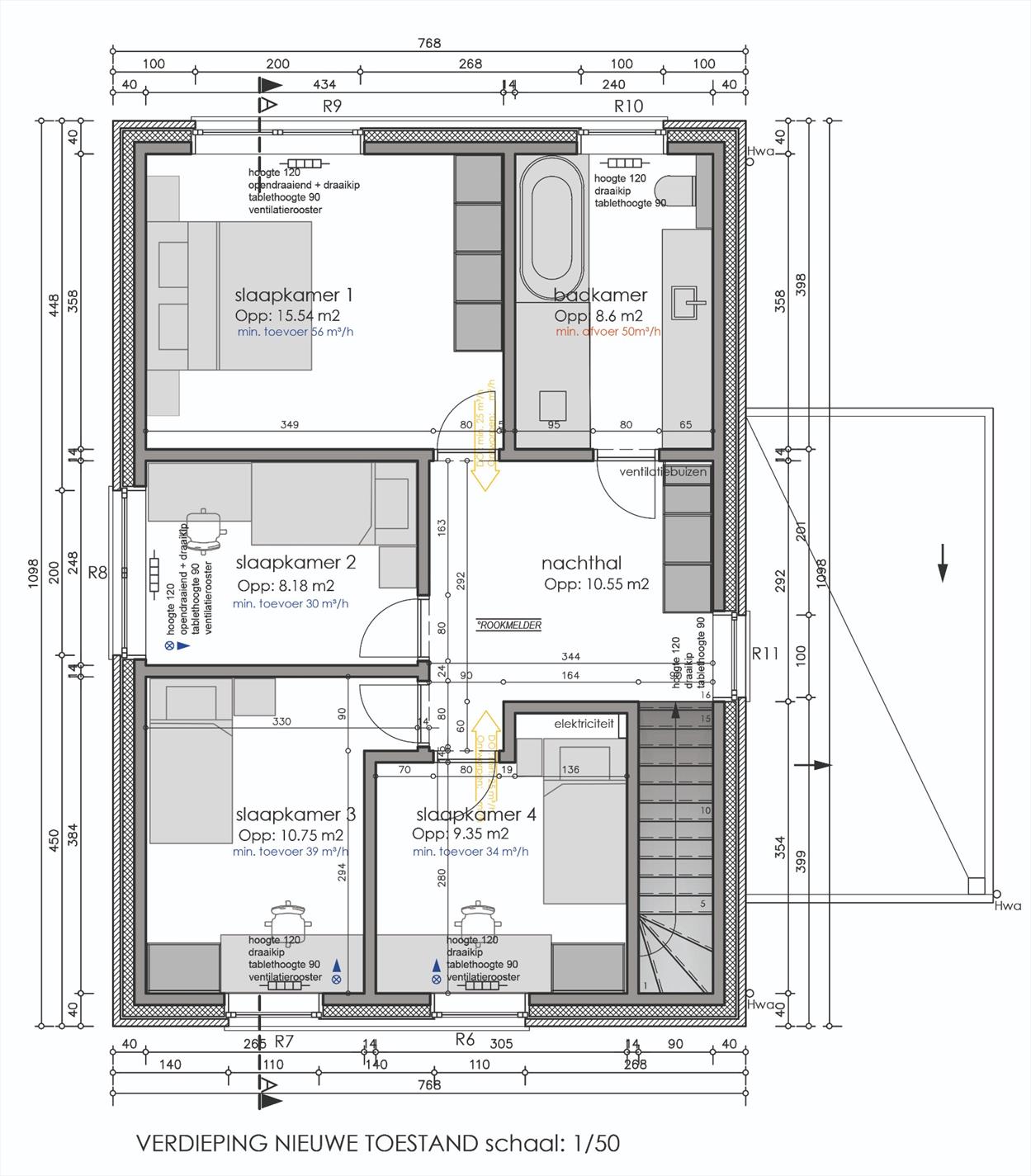
VERDIEP 1:
nachthal - 4 slaapkamers - ingerichte badkamer met ligbad, inloopdouche, toilet en dubbele wastafel.

ALGEMEEN:
- CV op aardgas - overal vloerverwarming!
- Schrijnwerk: ALU, hoogrendementsglas en vliegramen.
- Regenwaterput: 10.000l
- Ventilatie: Systeem C+
- Vrij vanaf 01/09/2019 (bij oplevering)
- Laag energieverbruik, energiezuinige woning: E40!
- EPB van toepassing.


Niet gevonden wat je zocht? Schrijf u dan vrijblijvend in op onze nieuwsbrief en blijf op de hoogte van ons recentste aanbod.
Schrijf u in
U gebruikt een verouderde browser. Upgrade nu naar een moderne browser om ten volle gebruik te kunnen maken van alle functies van onze site:
Chrome |  FireFox |  Opera |  Safari |  Microsoft Edge
Terug naar boven
Sluit menu Vastgoed Vanoverschelde