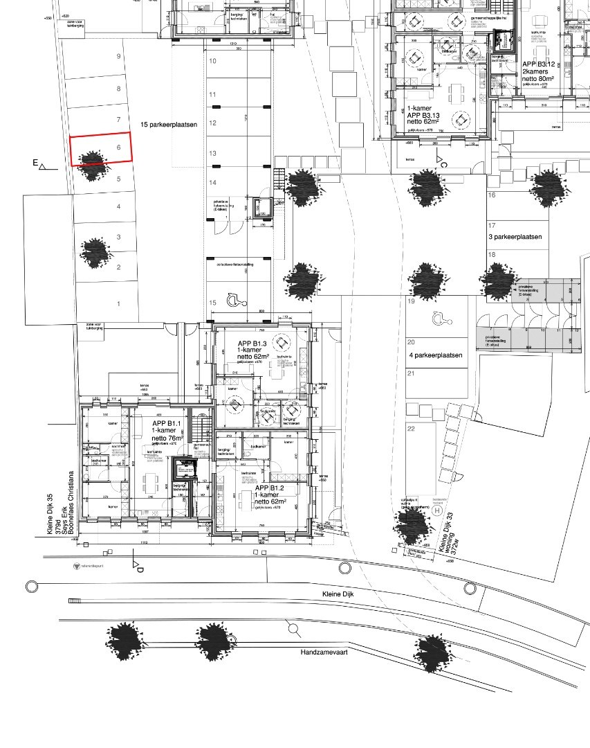
Kleine Dijk 34 / P6, 8600 Diksmuide
Huurprijs: € 40

Omschrijving

Afgesloten staanplaats in het centrum

Deze parkeerplaats maakt deel uit van woonerf "Noordvesten" en bevindt zich langs de Kleine Dijk te Diksmuide.

ALGEMEEN:
- Afmeting: 2,5m op 5,80m
- Parkeerzone is afgesloten met een automatische poort.
- Centrale ligging in het centrum van Diksmuide.
- Op wandelafstand van de Grote Markt.
- Onmiddellijk vrij!

Veilig de auto parkeren in het centrum?
Dan biedt deze autostaanplaats de oplossing.


Kenmerken

Algemeen

Adres:Kleine Dijk 34/P6
Diksmuide
Referentie:VV2026-008H
Huurprijs:€ 40
Type:Parkeerplaats
Beschikbaar vanaf:Onmiddellijk
Ligging:In centrum, Stad, Stad centrum, Aan water, Residentieel
Perceeloppervlakte:15 m²
Type constructie:Traditioneel
Bouwjaar:2021

Indeling

Parking:1
Parking Types:Privé

Comfort

Treinstation:Ja - op 500 m tot 1000 m
Treinhalte:Ja - op 500 m tot 1000 m
Busknooppunt:Ja - op 500 m tot 1000 m
Bushalte:Ja - op minder dan 500 m
Winkel:Ja - op minder dan 500 m
School:Ja - op minder dan 500 m
Kinderopvang:Ja - op minder dan 500 m
Bank:Ja - op minder dan 500 m
Ontspanning:Ja - op minder dan 500 m
Restaurant:Ja - op minder dan 500 m

Informatieplicht

Overstromingsgevoelig:Niet meegedeeld
Overstromingsgebied:Niet meegedeeld
Erfgoed:Niet meegedeeld

Ligging

Neem vrijblijvend contact op

Wenst u meer informatie of het pand te bezoeken? Contacteer ons vrijblijvend voor meer informatie. 
Wanneer wij uw aanvraag hebben ontvangen zullen wij verder contact met u opnemen. 


U moet akkoord gaan met het privacybeleid van deze website
* Verplicht in te vullen
Niet gevonden wat je zocht? Schrijf u dan vrijblijvend in op onze nieuwsbrief en blijf op de hoogte van ons recentste aanbod.
Schrijf u in
U gebruikt een verouderde browser. Upgrade nu naar een moderne browser om ten volle gebruik te kunnen maken van alle functies van onze site:
Chrome |  FireFox |  Opera |  Safari |  Microsoft Edge
Terug naar boven
Sluit menu Vastgoed Vanoverschelde